
来源:房地产经理人联盟
如有侵权,请联系删除
1.结构层高 structure story height
楼面或地面结构层上表面至上部结构层上表面之间的垂直距离.。
2.结构净高 structure net height
楼面或地面结构层上表面至上部结构层下表面之间的垂直距离。

3.结构层 structure layer
整体结构体系中承重的楼板层。
条文说明:特指整体结构体系中承重的楼层,包括板、梁等构件。结构层承受整个楼层的全部荷载,并对楼层的隔声、防火等起主要作用。
比如:避难层,设备转换层等。
4 门廊 porch
建筑物入口前有顶棚的半围合空间 。
条文说明:门廊是在建筑物出入口,无门、三面或二面有墙,上部有板(或借用上部楼板)围护的部位。

1.架空层 stilt floor
新: 仅有结构支撑而无外围护结构的开敞空间层 ;
旧:建筑物深基础或坡地建筑吊脚架空部位不回填土石方形成的建筑空间
区别:明确有结构支撑无维护结构
2. 凸窗(飘窗) bay window
新:凸出建筑物外墙面的窗户;
条文说明:
凸窗(飘窗)既作为窗,就有别于楼(地)板的延伸,也就是不能把楼(地)板延伸出去的窗称为凸窗(飘窗)。
凸窗(飘窗)的窗台应只是墙面的一部分且距(楼)地面应有一定的高度。
旧:(飘窗 bay window)
为房问采光和美化造型而设置的突出外墙的窗。

假飘窗,用于偷面积,按新规的条文说明,将不能再定义为飘窗

真飘窗,按新规的条文说明,只有此窗户才能定义为飘窗。
3. 檐廊 eaves gallery
新:建筑物挑檐下的水平交通空间
条文 说明:檐廊是附属于建筑物底层外墙有屋檐作为顶盖,其下部一般有柱或栏杆、栏板等的水平交通空间。
旧:设置在建筑物底层出檐下的水平交通空间
4.门斗 air lock
新:建筑物入口处两道门之间的空间。
旧:在建筑物出入口设置的起分隔、挡风、御寒等作用的建筑过渡空间
区别:明确空间范围
5.阳台 balcony
新: 附设于建筑物外墙,设有栏杆或栏板,可供人活动的室外空间
旧:供使用者进行活动和晾硒衣物的建筑空间
6.骑楼 overhang
新: 建筑底层沿街面后退且留出公共人行空间的建筑物
条文说明:骑楼是指沿街二层以上用承重柱支撑骑跨在公共人行空间之上,其底层沿街面后退的建筑物。
旧:楼层部分跨在人行道上的临街楼房
7.过街楼 overhead building
新:跨越道路上空并与两边建筑相连接的建筑物
条文说明:过街楼是指当有道路在建筑群穿过时为保证建筑物之间的功能联系,设置跨越道路上空使两边建筑相连接的建筑物。
旧:有道路穿过建筑空间的楼房
8.勒脚 plinth
新: 在房屋外墙接近地面部位设置的饰面保护构造
旧:建筑物的外墙与室外地面或散水按触部位墙体的加厚部分
新:建筑物的建筑面积应按自然层外墙结构外围水平面积之和计算。结构层高在2.20m及以上的应计算全面积;结构层高在2.20m以下的,应计算1/2面积。
新条文说明:
建筑面积计算,在主体结构内形成的建筑空间,满足计算面积结构层高要求的均应按本条规定计算建筑面积。主体结构外的室外阳台、雨篷、檐廊、室外走廊、室外楼梯等按相应条款计算建筑面积。当外墙结构本身在一个层高范围内不等厚时,以楼地面结构标高处的外围水平面积计算。
解读:
用结构层高代替老版本的层高
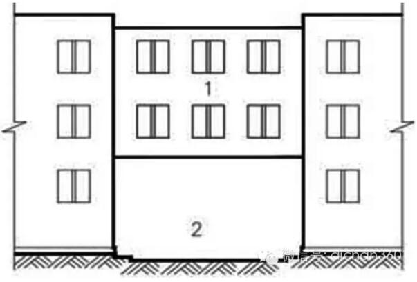
新:建筑物内设有局部楼层时,对于局部楼层的二层及以上楼层,有围护结构的应按其围护结构外围水平面积计算,无围护结构的应按其结构底板水平面积计算,且结构层高在2.20m及以上的,应计算全面积,结构层高在2.20m以下的,应计算1/2面积。
新条文说明:建筑物内的局部楼层见图1

图1 建筑物内的局部楼层
1——围护设施;
2——围护结构;
3——局部楼层
解读:用结构层高代替老版本的层高
新:对于形成建筑空间的坡屋顶,结构净高在2.10m及以上的部位应计算全面积;结构净高在1.20m及以上至2.10m以下的部位 应计算1/2面积;结构净高在1.20m以下的部位不应计算建筑面积。
解读:用结构净高代替老版本的净高

新:对于场馆看台下的建筑空间,结构净高在2.10m及以上的部位应计算全面积;结构净高在1.20m及以上至2.10m以下的部位应计算1/2面积;结构净高在1.20m以下的部位不应计算建筑面积。室内单独设置的有围护设施的悬挑看台,应按看台结构底板
水平投影面积计算建筑面积。有顶盖无围护结构的场馆看台应按其顶盖水平投影面积的1/2计算面积。
新条文说明:场馆看台下的建筑空间因其上部结构多为斜板,所以采用净高的尺寸划定建筑面积的计算范围和对应规则。室内单独设置的有围护设施的悬挑看台,因其看台上部设有顶盖且可供人使用,所以按看台板的结构底板水平投影计算建筑面积。
“有顶盖无围护结构的场馆看台”所称的“场馆”为专业术语,指各种“场”类建筑,如:体育场、足球场、网球场、带看台的风雨操场等。
旧: 3.0.4 多层建筑坡屋顶内和场馆看台下,当设计加以利用时净高超过2.10m的部位应计算全面积;净高在1.20m至2.10m的部位应计算1/2面积;当设计不利用或室内净高不足1.20m时不应计算面积。
3.0.6 设计不利用的深基础架空层、坡地吊脚架空层、多层建筑坡屋顶内、场馆看台下的空间不应计算面积。
3.0.12 有永久性顶盖无围护结构的场馆看台应按其顶盖水平投影面积的1/2计算。
旧条文说明:3.0.4 多层建筑坡屋顶内和场馆看台下的空间应视为坡屋顶内的空间,设计加以利用时,应按其净高确定其面积的计算。设计不利用的空间,不应计算建筑面积。
3.0.12本条所称“场馆”实质上是指“场”(如:足球场、网球场等)看台上有永久性顶盖部分。“馆”应是有永久性顶盖和围护结构的,应按单层或多层建筑相关规定计算面积。
解读:新版本取消“当设计加以利用时”取消“设计不利用”
取消 “永久性顶盖“
新:地下室、半地下室应按其结构外围水平面积计算。结构层高在2.20m及以上的,应计算全面积;结构层高在2.20m以下的,应计
算1/2面积。
新条文说明:地下室作为设备、管道层按本规范第3.0.26条执行;地下室的各种竖向井道按本规范第3.0.19条执行;地下室的围护结构不垂直于水平面的按本规范第3.0.18条规定执行。
旧:3.0.5 地下室、半地下室(车间、商店、车站、车库、仓库等),包括相应的有永久性顶盖的出入口,应按其外墙上口(不包括采光井、外墙防潮层及其保护墙)外边线所围水平面积计算。层高在2.20m及以上者应计算全面积;层高不足2.20m者应计算l/2面积。
旧条文说明:地下室、半地下室应以其外墙上口外边线所围水平面积计算。原计算规则规定按地下室、半地下室上口外墙外围水平面积计算,文字上不甚严密,“上口外墙”容易理解为地下室、半地下室的上一层建筑的外墙。由于上一层建筑外墙与地下室墙的中心线不一定完全重叠,多数情况是凸出或凹进地下室外墙中心线。
解读:新版取消了对“永久性顶盖的出入口”的规定。
新:出入口外墙外侧坡道有顶盖的部位,应按其外墙结构外围水平面积的1/2计算面积。
新条文说明:出入口坡道分有顶盖出入口坡道和无顶盖出入口坡道,出入口坡道顶盖的挑出长度,为顶盖结构外边线至外墙结构外边线的
长度;顶盖以设计图纸为准,对后增加及建设单位自行增加的顶盖等,不计算建筑面积。顶盖不分材料种类(如钢筋混凝土顶盖、彩钢板顶盖、阳光板顶盖等)。地下室出入口见图2。

图2地下室出入口
1——计算1/2投影面积部位;
2——主体建筑;
3——出入口顶盖;
4——封闭出入口侧墙;
5——出入口坡道
旧:3.0.5 地下室、半地下室(车间、商店、车站、车库、仓库等),包括相应的有永久性顶盖的出入口,应按其外墙上口(不包括采光 井、外墙防潮层及其保护墙)外边线所围水平面积计算。层高在2.20m及以上者应计算全面积;层高不足2.20m者应计算l/2面积。
解读:新版取消了“永久性顶盖”“的说法;新版中,坡道包括自行车坡道、车库坡道等,顶盖包含钢筋混凝土结构、采光板、玻璃顶等
新:
建筑物架空层及坡地建筑物吊脚架空层,应按其顶板水平投影计算建筑面积。结构层高在2.20m及以上的,应计算全面积;结构层高在2.20m以下的,应计算1/2面积。
新条文说明:
本条既适用于建筑物吊脚架空层、深基础架空层建筑面积的计算,也适用于目前部分住宅、学校教学楼等工程在底层架空或在二楼或以上某个甚至多个楼层架空,作为公共活动、停车、绿化等空间的建筑面积的计算。架空层中有围护结构的建筑空间按相关规定计算。

建筑物吊脚架空层见图3。
图3建筑物吊脚架空层
1——柱;
2——墙;
3——吊脚架空层;
4——计算建筑面积部位
旧:3.0.7建筑物的门厅、大厅按一层计算建筑面积。门厅、大厅内设有回廊时,应按其结构底板水平面积计算。层高在2.20rn及以上者应计算全面积;层高不足2.20m者应计算1/2面积。
解读:规划设计时应注意,以往均按架空景观层概念,不计建筑面积(容积率)。
新:建筑物的门厅、大厅应按一层计算建筑面积,门厅、大厅内设置的走廊应按走廊结构底板水平投影面积计算建筑面积。结构层高在2.20m及以上的,应计算全面积;结构层高在2.20m以下的,应计算1/2面积。
旧:3.0.8建筑物间有围护结构的架空走廊,应按其围护结构外围水平面积计算。层高在2.20m及以上者应计算全面积;层高不足2.20m者应计算1/2面积。有永久性顶盖无围护结构的应按其结构底板水平面积的l/2 计算。
新:对于建筑物间的架空走廊,有顶盖和围护设施的,应按其围护结构外围水平面积计算全面积;无围护结构、有围护设施的,应按其 结构底板水平投影面积计算1/2面积。
新条文说明:无围护结构的架空走廊见图4。有围护结构的架空走廊见图5。

图4 无围护结构的架空走廊
1——栏杆;
2——架空走廊图

5 有围护结构的架空走廊 1——架空走廊
旧:3.0.8建筑物间有围护结构的架空走廊,应按其围护结构外围水平面积计算。层高在2.20m及以上者应计算全面积;层高不足2.20m者应计算1/2面积。有永久性顶盖无围护结构的应按其结构底板水平面积的l/2 计算。
解读:新版增加了“围护设施”的规定。
新:对于立体书库、立体仓库、立体车库,有围护结构的,应按其围护结构外围水平面积计算建筑面积;无围护结构、有围护设施的, 应按其结构底板水平投影面积计算建筑面积。无结构层的应按一层计算,有结构层的应按其结构层面积分别计算。结构层高在2.20m及以上的,应计算全面积;结构层高在2.20m以下的,应计算1/2面积。
新条文说明:本条主要规定了图书馆中的立体书库、仓储中心的立体仓库、大型停车场的立体车库等建筑的建筑面积计算规定。起局部
分隔、存储等作用的书架层、货架层或可升降的立体钢结构停车层均不属于结构层,故该部分分层不计算建筑面积。
旧:3.0.9立体书库、立体仓库、立体车库,无结构层的应按一层计算,有结构层的应按其结构层面积分别计算。层高在2.20m及以上者
应计算全面积;层高不足2.20m者应计算l/2面积。
新条文说明:本条对原规定进行了修订,并增加了立体车库的面积计算。立体车库、立体仓库、立体书库不规定是否有围护结构,均按
是否有结构层,应区分不同的层高确定建筑面积计算的范围,改变按书架层和货架层计算面积的规定。
解读:新版分了“有无围护结构”“有无围护设施”的说法。
新:有围护结构的舞台灯光控制室,应按其围护结构外围水平面积计算。结构层高在2.20m及以上的,应计算全面积;结构层高在2.20m以下的,应计算1/2面积。
旧:3.0.10有围护结构的舞台灯光控制室,应按其围护结构外围水平面积计算。层高在2.20m及以上者应计算全面积;层高不足2.20m者应计算1/2面积。
解读:新版将层高均改为“结构层高”。
新:有附属在建筑物外墙的落地橱窗,应按其围护结构外围水平面积计算。结构层高在2.20m及以上的,应计算全面积;结构层高
在2.20m以下的,应计算1/2面积。
旧:3.0.11建筑物外有围护结构的落地橱窗、门斗、挑廊、走廊、檐廊,应按其围护结构外围水平面积计算。层高在2.20m及以上者
应计算全面积;层高不足2.20m者应计算1/2 面积。有永久性顶盖无围护结构的应按其结构底板水平面积的1/2计算。
解读:新版取消了“门斗、挑廊、走廊、檐廊”。
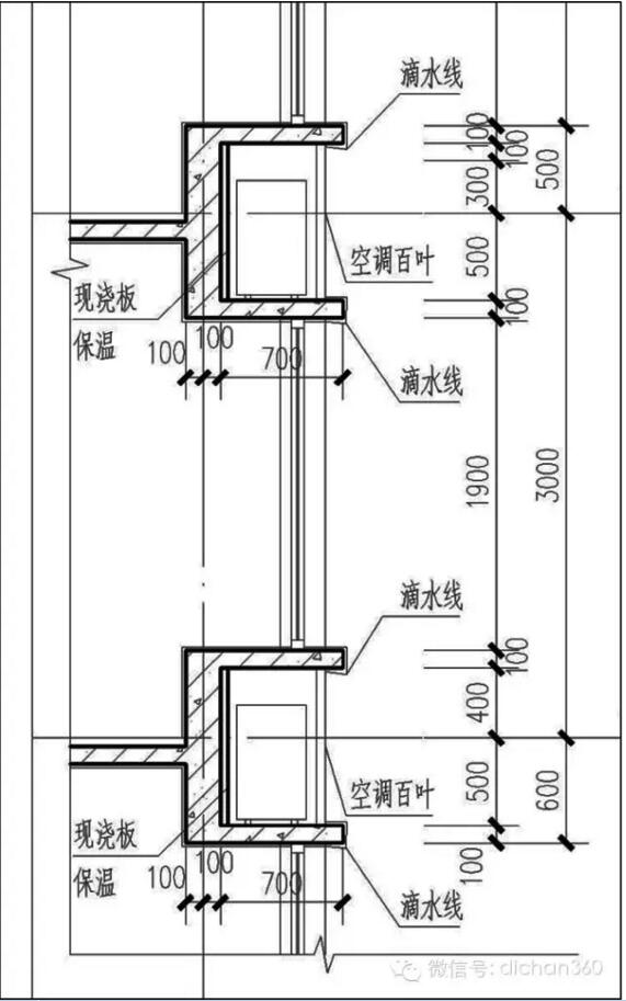
新:窗台与室内楼地面高差在0.45m以下且结构净高在2.10m及以上的凸窗,应按其围护结构外围水平面积计算1/2面积。
3.0.27.7不计算建筑面积:窗台与室内地面高差在0.45m以下且结构净高在2.10m以下的凸(飘)窗,窗台与室内地面高差在0.45m 及以上的凸(飘)窗;
解读:此条为新增规定。 增加了0.45m高差以下,净高2.1m及以上两个指标控制标准。

新:有围护设施的室外走廊(挑廊),应按其结构底板水平投影面积计算1/2面积;有围护设施(或柱)的檐廊,应按其围护设施(或柱)外围水平面积计算1/2面积。
新条文说明: 檐廊见图6。
图6 檐廊
1——檐廊;
2——室内;
3——不计算建筑面积部位;
4——计算1/2建筑面积部位
旧:3.0.11 建筑物外有围护结构的落地橱窗、门斗、挑廊、走廊、檐廊,应按其围护结构外围水平面积计算。层高在2.20m及以上者应计算全面积;层高不足2.20m者应计算1/2面积。有永久性顶盖无围护结构的应按其结构底板水平面积的1/2计算。
解读:细分了面积计算规则
新:门斗应按其围护结构外围水平面积计算建筑面积,且结构层高在2.20m及以上的,应计算全面积;结构层高在2.20m以下的,应计算1/2面积。
新条文说明:门斗见图7。

图7 门斗
1——室内;
2——门斗
旧:3.0.11建筑物外有围护结构的落地橱窗、门斗、挑廊、走廊、檐廊,应按其围护结构外围水平面积计算。层高在2.20m及以上者应计算全面积;层高不足2.20m者应计算1/2 面积。有永久性顶盖无围护结构的应按其结构底板水平面积的1/2计算。
解读:取消了“永久性顶盖无围护结构”的计算规则。
新:门廊应按其顶板的水平投影面积的1/2计算建筑面积;有柱雨篷应按其结构板水平投影面积的1/2计算建筑面积;无柱雨篷的结构
外边线至外墙结构外边线的宽度在2.10m及以上的,应按雨篷结构板的水平投影面积的1/2计算建筑面积。
新条文说明:
雨篷分为有柱雨篷和无柱雨篷。有柱雨篷,没有出挑宽度的限制,也不受跨越层数的限制,均计算建筑面积。无柱雨篷,其结构板不能跨层,并受出挑宽度的限制,设计出挑宽度大于或等于2.10m时才计算建筑面积。出挑宽度,系指雨篷结构外边线至外墙结构外边线的宽度,弧形或异形时,取最大宽度。
雨篷条文说明:雨篷是指建筑物出入口上方、凸出墙面、为遮挡雨水而单独设立的建筑部件。雨篷划分为有柱雨篷(包括独立柱雨篷、多柱雨篷、柱墙混合支撑雨篷、墙支撑雨篷)和无柱雨篷(悬挑雨篷)。如凸出建筑物,且不单独设立顶盖,利用上层结构板(如楼板、阳台底板)进行遮挡,则不视为雨篷,不计算建筑面积。对于无柱雨篷,如顶盖高度达到或超过两个楼层时,也不视为雨篷,不计算建筑面积。
旧:3.0.16 雨篷结构的外边线至外墙结构外边线的宽度超过2.10m者,应按雨篷结构板的水平投影面积的1/2 计箕。
旧条文说明:雨篷均以其宽度超过2.10m或不超过2.10m衡量,超过2.10m者应按雨篷的结构板水平投影面积的1/2计算。有柱雨篷和无柱雨篷计算应一致。
解读:细分了面积计算规则,增加了门廊的面积计算规定, 有柱雨篷不受2.1m的限制,均算1/2面积
新:围护结构不垂直于水平面的楼层,应按其底板面的外墙外围水平面积计算。结构净高在2.10m及以上的部位,应计算全面积;结构净高在1.20m及以上至2.10m以下的部位,应计算1/2面积;结构净高在1.20m以下的部位,不应计算建筑面积。
新条文说明:
本规范的2005版条文中仅对围护结构向外倾斜的情况进行了规定,本次修订后条文对于向内、向外倾斜均适用。在划分高度上,本条使用的是“结构净高”,与其他正常平楼层按层高划分不同,但与斜屋面的划分原则相一致。由于目前很多建筑设计追求新、奇、特,造型越来越复杂,很多时候根本无法明确区分什么是围护结构、什么是屋顶,因此对于斜围护结构与斜屋顶采用相同的计算规则,即只要外壳倾斜,就按结构净高划段,分别计算建筑面积。斜围护结构见图8。

图8 斜围护结构
1——计算1/2建筑面积部位;
2——不计算建筑面积部位
旧:3.0.14设有围护结构不垂直于水平面而超出底板外沿的建筑物,应按其底板面的外围水平面积计算。层高在2.20m及以上者应计算
全面积;层高不足2.20m者应计算1/2面积。
旧条文说明:有围护结构不垂直于水平面而超出底板外沿的建筑物是指向建筑物外倾斜的墙体,若遇有向建筑物内倾斜的墙体,应视
为坡屋顶,应按坡屋顶有关条文计算面积。
解读:将原来的2.2m的限定条件改为了1.2m和2.1m两个限定条件。
新:建筑物的室内楼梯、电梯井、提物井、管道井、通风排气竖井、烟道,应并入建筑物的自然层计算建筑面积。有顶盖的采光井应按一层计算面积,且结构净高在2.10m及以上的,应计算全面积;结构净高在2.10m以下的,应计算1/2面积。
新条文说明:建筑物的楼梯间层数按建筑物的层数计算。有顶盖的采光井包括建筑物中的采光井和地下室采光井。地下室采光井见图9。

图9 地下室采光井
1——采光井;
2——室内;
3——地下室
旧:3.0.15 建筑物内的室内楼梯间、电梯井、观光电梯井、提物井、管道井、通风排气竖井、垃圾道、附墙烟囱应按建筑物的自然层计算。
旧条文说明:室内楼梯间的面积计算,应按楼梯依附的建筑物的自然层数计算并在建筑物面积内。遇跃层建筑,其共用的室内楼梯应按自然层计算面积;上下两错层户室共用的室内楼梯,应选上一层的自然层计算面积(见图2)。
解读:新版取消观光电梯井、垃圾道;取消附墙烟囱,新增烟道、有顶盖的采光井
新:室外楼梯应并入所依附建筑物自然层,并应按其水平投影面积的1/2计算建筑面积。
新条文说明:室外楼梯作为连接该建筑物层与层之间交通不可缺少的基本部件,无论从其功能、还是工程计价的要求来说,均需计算建筑面积。层数为室外楼梯所依附的楼层数,即梯段部分投影到建筑物范围的层数。利用室外楼梯下部的建筑空间不得重复计算建筑面积;利用地势砌筑的为室外踏步,不计算建筑面积。
旧:3.0.17 有永久性顶盖的室外楼梯,应按建筑物自然层的水平投影面积的1/2计算。
旧条文说明:室外楼梯,最上层楼梯无永久性顶盖,或不能完全遮盖楼梯的雨篷,上层楼梯不计算面积,上层楼梯可视为下层楼梯的永久性顶盖,下层楼梯应计算面积。
解读:取消永久性顶盖
新:在主体结构内的阳台,应按其结构外围水平面积计算全面积;在主体结构外的阳台,应按其结构底板水平投影面积计算1/2面积。
新条文说明:建筑物的阳台,不论其形式如何,均以建筑物主体结构为界分别计算建筑面积。

旧:3.0.18 建筑物的阳台均应按其水平投影面积的1/2计算。
旧条文说明:建筑物的阳台,不论是凹阳台、挑阳台、封闭阳台、不封闭阳台均按其水平投影面积的一半计算。
解读:
阳台计算面积变化大,区分了主体结构内和主体结构外的阳台的面积计算规定。
有争议的阳台面积算法的情况:

新:有顶盖无围护结构的车棚、货棚、站台、加油站、收费站等,应按其顶盖水平投影面积的1/2计算建筑面积。
旧:3.0.19 有永久性顶盖无围护结构的车棚、货棚、站台、加油站、收费站等,应按其顶盖水平投影面积的1/2计算。
旧条文说明:车棚、货棚、站台、加油站、收费站等的面积计算。由于建筑技术的发展,出现许多新型结构,如柱不再是单纯的直立的柱,而出现正∨形柱、倒∧形柱等不同类型的柱,给面积计算带来许多争议,为此,我们不以柱来确定面积的计算,而依据顶盖的水平投影面积计算。在车棚、货棚、站台、加油站、收费站内设有有围护结构的管理室、休息室等,另按相关条款计算面积。
解读:取消永久性顶盖
关于幕墙
新:以幕墙作为围护结构的建筑物,应按幕墙外边线计算建筑面积。
新条文说明:幕墙以其在建筑物中所起的作用和功能来区分,直接作为外墙起围护作用的幕墙,按其外边线计算建筑面积;设置在建筑物墙体外起装饰作用的幕墙,不计算建筑面积。
解读:新版未做修改
新:建筑物的外墙外保温层,应按其保温材料的水平截面积计算,并计入自然层建筑面积。
新条文说明:为贯彻国家节能要求,鼓励建筑外墙采取保温措施,本规范将保温材料的厚度计入建筑面积,但计算方法较2005年规范有一定变化。建筑物外墙外侧有保温隔热层的,保温隔热层以保温材料的净厚度乘以外墙结构外边线长度按建筑物的自
然层计算建筑面积,其外墙外边线长度不扣除门窗和建筑物外已计算建筑面积构件(如阳台、室外走廊、门斗、落地橱窗等部件)所占长度。当建筑物外已计算建筑面积的构件(如阳台、室外走廊、门斗、落地橱窗等部件)有保温隔热层时,其保温隔热层也不再计算建筑面积。外墙是斜面者按楼面楼板处的外墙外边线长度乘以保温材料的净厚度计算。外墙外保温以沿高度方向满铺为准,某层外墙外保温铺设高度未达到全部高度时(不包括阳台、室外走廊、门斗、落地橱窗、雨篷、飘窗等),不计算建筑面积。保温隔热层的建筑面积是以保温隔热材料的厚度来计算的,不包含抹灰层、防潮层、保护层(墙)的厚度。建筑外墙外保温见图10。

图10建筑外墙外保温
1——墙体;
2——粘结胶浆;
3——保温材料;
4——标准网;
5——加强网;
6——抹面胶浆;
7——计算建筑面积部位
旧: 建筑物外墙外侧有保温隔热层的,应按保温隔热层外边线计算建筑面积。
解读:
新版在保温层面积的计算上做重新阐述。
新:与室内相通的变形缝,应按其自然层合并在建筑物建筑面积内计算。对于高低联跨的建筑物,当高低跨内部连通时,其变形缝应计算在低跨面积内。
新条文说明:本规范所指的与室内相通的变形缝,是指暴露在建筑物内,在建筑物内可以看得见的变形缝。
旧:3.0.23 建筑物内的变形缝,应按其自然层合并在建筑物面积内计算。
旧条文说明:本规范所指建筑物内的变形缝是与建筑物相连通的变形缝,即暴露在建筑物内,在建筑物内可以看得见的变形缝。
解读:新版新增高低跨建筑。
新:对于建筑物内的设备层、管道层、避难层等有结构层的楼层,结构层高在2.20m及以上的,应计算全面积;结构层高在2.20m以下的,应计算1/2面积。
新条文说明:设备层、管道层虽然其具体功能与普通楼层不同,但在结构上及施工消耗上并无本质区别,且本规范定义自然层为“按楼地面结构分层的楼层”,因此设备、管道楼层归为自然层,其计算规则与普通楼层相同。在吊顶空间内设置管道的,则吊顶空间部分不能被视为设备层、管道层。
解读:本条为新增。
新:下列项目不应计算建筑面积:
❶与建筑物内不相连通的建筑部件;
新条文说明:指的是依附于建筑物外墙外不与户室开门连通,起装饰作用的敞开式挑台(廊)、平台,以及不与阳台相通的空调室外机搁板(箱)等设备平台部件。
解读:本条为新增。
新:2 骑楼、过街楼底层的开放公共空间和建筑物通道;
新条文说明:

骑楼见图11
1——骑楼;
2——人行道;
3——街道

图12 过街楼
1——过街楼;
2——建筑物通道
旧:1 建筑物通道(骑楼、过街楼的底层)。
新:3 舞台及后台悬挂幕布和布景的天桥、挑台等;
新条文说明:指的是影剧院的舞台及为舞台服务的可供上人维修、悬挂幕布、布置灯光及布景等搭设的天桥和挑台等构件设施。
旧:3 建筑物内分隔的单层房间,舞台及后台悬挂幕布、布景的天桥、挑台等。
解读:新版取消了“内部分割的单层房间” 。
新: 4 露台、露天游泳池、花架、屋顶的水箱及装饰性结构构件;
旧:4 屋顶水箱、花架、凉棚、露台、露天游泳池。
解读:新版取消凉棚,增加装饰性结构构件。
新: 5 建筑物内的操作平台、上料平台、安装箱和罐体的平台;
新条文说明:建筑物内不构成结构层的操作平台、上料平台(包括:工业厂房、搅拌站和料仓等建筑中的设备操作控制平台、上料平台
等),其主要作用为室内构筑物或设备服务的独立上人设施,因此不计算建筑面积。
解读:新版未做修改。
新:6 勒脚、附墙柱、垛、台阶、墙面抹灰、装饰面、镶贴块料面层、装饰性幕墙,主体结构外的空调室外机搁板(箱)、构件、配件,
挑出宽度在2.10m以下的无柱雨篷和顶盖高度达到或超过两个楼层的无柱雨篷;
新条文说明:附墙柱是指非结构性装饰柱。
旧: 6 勒脚、附墙柱、垛、台阶、墙面抹灰、装饰面、镶贴块料面层、装饰性幕墙、空调机外机搁板(箱)、飘窗、构件、配件、宽度在2.10m及以内的雨篷以及与建筑物内不相连通的装饰性阳台、挑廊。
旧条文说明:突出墙外的勒脚、附墙柱垛、台阶、墙面抹灰、装饰面、镶贴块料面层、装饰性幕墙、空调室外机搁板(箱)、飘窗、构件、配件、宽度在2.10m及以内的雨篷以及与建筑物内不相连通的装饰性阳台、挑廊等均不属于建筑结构,不应计算建筑面积。
新:8室外爬梯、室外专用消防钢楼梯;
旧:7无永久性顶盖的架空走廊、室外楼梯和用于检修、消防等的室外钢楼梯、爬梯。
解读:取消无永久性顶盖的架空走廊。
新: 9无围护结构的观光电梯;
解读:本条为新增。
新: 10建筑物以外的地下人防通道,独立的烟囱、烟道、地沟、油(水)罐、气柜、水塔、贮油(水)池、贮仓、栈桥等构筑物。
旧:9 独立烟囱、烟道、地沟、油(水)罐、气柜、水塔、贮油(水)池、贮仓、栈桥、地下人防通道、地铁隧道。
解读:本条特别说明建筑物以外的地下人防通道。
解读:关于不算面积的建筑项目之3.0.27条规范,新规取消了原规范的第2条:[ 建筑物内的设备管道夹层。]和第8条[自动扶梯、自动人行道。